大阪市浪速区 中古マンション No.b000384 |
|
|
 |
|
| 物件名称 NAMBA GMT なんば グランドマスターズタワー |
| 所在地 |
浪速区敷津東2丁目 |
| 交通 |
南海本線「なんば」駅徒歩9分、各線「大国町」駅徒歩4分 |
 |
| 外観 |
|
 |
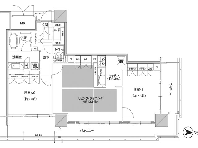
| 間取り |
|
 |
| 室内イメージ |
|
 |
| 室内イメージ |
|
 |
| 室内イメージ |
|
 |
| 室内イメージ |
|
| 建物 |
専有面積 |
72.79m2 |
契約条件 |
販売価格 |
【終了】 |
| 間取り |
2LDK 16階 |
管理(共益)費 |
11,650円 |
| 構造 |
RC(鉄筋コンクリート) |
修繕積立金 |
4,370円 |
| 完成年月 |
2010.6 |
|
|
| 総戸数 |
321戸 |
階数/階建 |
16階/地上33階地下1階建 |
| 土地 |
権利関係 |
所有権 |
方位 |
東 |
| 駐車場 |
有り 月額23,000円〜27,000円/台 |
| 備考 |
★北東角部屋 ★L字バルコニー ★日当り良好 ★コンシェルジュ ★共用施設・室内設備充実 ★ペット飼育可 ★なんばパークス提携サービス、スイスホテル提携サービス |
| 設備概要 |
オートロック、TVモニター付インターホン、宅配BOX、コンシェルジュ、ライブラリー、ゲストラウンジ、オーナーズサロン、クッキングジム、床暖房、システムキッチン、ディスポーザー、浄水器、フルオートバス、ウォシュレット、BS・CS、CATV、駐車場、バイク置場、駐輪場、なんばパークス提携サービス、スイスホテル提携サービス |
| 管理形態 |
全部委託・常駐 |
| 管理会社 |
総合ハウジングサービス株式会社 |
| 施工会社 |
大林・南海辰村建設共同企業体 |
| 現況/引渡 |
現空/相談 取引態様/媒介 更新日/2011年9月12日 |
|
|
| お問合せ |
 |
ネクストグループ/ネクストホーム株式会社 大阪市西区北堀江1-1-30 四ツ橋グリーンビル7F TEL 06-6167-7770 免許番号 大阪府知事(3)第54111号 |
|
|
 |
|
|