福島区大開1丁目 中古マンション No.b000489 |
|
|
 |
|
| 物件名称 福島区大開1丁目 新築戸建 |
| 所在地 |
福島区大開1丁目 |
| 交通 |
千日前線「野田阪神」駅徒歩4分 |
 |
| 外観 |
|
 |
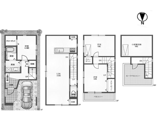
| 平面図 |
|
 |
| 外観 |
|
 |
| 外観 |
|
|
|
| 土地・建物 |
土地面積 |
43.67m2(13.21坪) |
契約条件 |
販売価格 |
【終了】 |
| 延床面積 |
89.60m2(27.10坪) |
|
|
| 間取り |
3LDK |
|
|
| 構造 |
木造 |
|
|
| 完成年月 |
2016.5 |
階建 |
屋上付地上3階建 |
|
権利関係 |
所有権 |
方位 |
|
| 駐車場 |
有り |
| 備考 |
★平成28年5月築 ★ルーフバルコニー付 ★駐車場1台付 ★北側(私道)幅員約3.8m ★私道面積126.28m2(17分の1) |
| 建蔽率/容積率 |
80%/300% |
| 用途地域 |
第二種住居地域 |
| 設備概要 |
都市ガス、公営水道、公共下水道、関西電力 |
|
|
| 現況/引渡 |
現空/相談 取引態様/媒介 更新日/2016年11月10日 |
|
|
| お問合せ |
 |
ネクストグループ/ネクストホーム株式会社 大阪市西区北堀江1-1-30 四ツ橋グリーンビル7F TEL 06-6167-7770 免許番号 大阪府知事(3)第54111号 |
|
|
 |
|