‘åãŽs¼‹æ@•ª÷’À‘Ý@‚‹‰’À‘Ý@@No.a000876 |
|
|
 |
|
| •¨Œ–¼Ì@@D'ƒNƒ‰ƒfƒBƒAŽlƒc‹´ |
| ŠÝ’n |
‘åãŽs¼‹æV’¬2’š–Ú |
| Œð’Ê |
’·–x’ߌ©—Î’nüu¼‘å‹´v‰w“k•à2•ª |
 |
| ŠOŠÏ |
|
 |
| ŠÔŽæ‚è |
|
 |
| ŠOŠÏ |
|
|
|
|
| Œš•¨ |
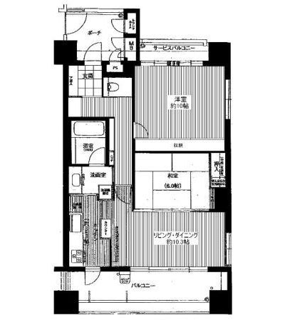
ê—L–ÊÏim2j |
72.54m2 |
Œ_–ñðŒ |
’À—¿ |
@yI—¹z |
| ŠÔŽæ‚è |
2LDK@9ŠK |
ŠÇ—i‹¤‰vj”ï |
’À—¿‚ÉŠÜ‚Þ |
| \‘¢ |
RC(“S‹ØƒRƒ“ƒNƒŠ[ƒg) |
•~‹à |
165,000‰~ |
| ŠK”^ŠKŒš |
9ŠK^’nã11ŠKŒš |
э܈ |
495,000‰~ |
| Š®¬”NŒŽ |
2003.9 |
|
|
| ’“ŽÔê |
—L‚è@ŒŽŠz29,000‰~^‘äi•½–Êj |
| ”õl |
š“Œ“ìŠp•”‰®@š2–ʃoƒ‹ƒRƒj[@š’“ŽÔê‹ó‚«‚ ‚è@š•ª÷ƒ}ƒ“ƒVƒ‡ƒ“@š‘åŒ^ƒX[ƒp[‹ß‚@š‰w“k•à2•ª |
| Ý”õŠT—v |
ƒI[ƒgƒƒbƒNATVƒ‚ƒjƒ^[•tƒCƒ“ƒ^[ƒzƒ“A‘î”zBOXAƒVƒXƒeƒ€ƒLƒbƒ`ƒ“A’dž‚«‹@”\•tƒtƒ‹ƒI[ƒgƒoƒXAƒEƒHƒVƒ…ƒŒƒbƒgABS¥CSACATVA’“ŽÔêAƒoƒCƒN’uêA’“—Öê |
| Œ»‹µ^ˆø“n |
Œ»‹ó^‘¦Žž |
|
|
| ‚¨–⇂¹ |
 |
ƒlƒNƒXƒgƒOƒ‹[ƒv^ƒlƒNƒXƒgƒz[ƒ€Š”Ž®‰ïŽÐ ‘åãŽs¼‹æ–k–x]1-1-30@Žlƒc‹´ƒOƒŠ[ƒ“ƒrƒ‹7F @TEL 06-6167-7770 –Æ‹–”Ô† ‘åã•{’mŽ–i3j‘æ54111† |
|
|
 |
|
|