| •¨Œ–¼Ì@@ƒuƒ‰ƒ“ƒYƒ^ƒ[“ì–x] |
| ŠÝ’n |
¼‹æ“ì–x]1’š–Ú |
| Œð’Ê |
Žl‚‹´üuŽlƒc‹´v‰w“k•à3•ªAŽl‚‹´üu‚È‚ñ‚Îv‰w“k•à3•ª |
 |
| ŠOŠÏ |
|
 |
| ŠÔŽæ‚è |
|
 |
| Žº“àƒCƒ[ƒW |
|
 |
| Žº“àƒCƒ[ƒW |
|
 |
| Žº“àƒCƒ[ƒW |
|
 |
| Žº“àƒCƒ[ƒW |
|
| Œš•¨ |
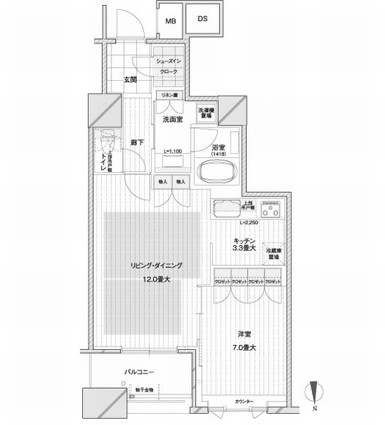
ê—L–ÊÏim2j |
55.05m2 |
Œ_–ñðŒ |
’À—¿ |
yI—¹z |
| ŠÔŽæ‚è |
1LDK@27ŠK |
ŠÇ—i‹¤‰vj”ï |
20,000‰~ |
| \‘¢ |
RC(“S‹ØƒRƒ“ƒNƒŠ[ƒg) |
•~‹à |
1ƒ•ŒŽ |
| ŠK”^ŠKŒš |
27ŠK^’nã35ŠKŒš |
э܈ |
2ƒ•ŒŽ |
| Š®¬”NŒŽ |
2014.3 |
|
|
| ’“ŽÔê |
—L‚è@ŒŽŠz25,000‰~`30,000‰~^‘ä |
| ”õl |
š27ŠKE‚‘wŠK@šV’z@š•ª÷ƒ^ƒ[ƒ}ƒ“ƒVƒ‡ƒ“@š‹¤—pŽ{Ý[ŽÀiƒXƒJƒCƒfƒbƒLAƒrƒ…[ƒ‰ƒEƒ“ƒWAƒtƒBƒbƒgƒlƒXƒXƒy[ƒXAƒSƒ‹ƒtƒŒƒ“ƒWj@š–Æk\‘¢ |
| Ý”õŠT—v |
ƒI[ƒgƒƒbƒNATVƒ‚ƒjƒ^[•tƒCƒ“ƒ^[ƒzƒ“A‘î”zBOXAƒXƒJƒCƒfƒbƒLAƒQƒXƒgƒ‹[ƒ€AƒtƒBƒbƒgƒlƒXƒXƒy[ƒXAƒSƒ‹ƒtƒŒƒ“ƒWAƒVƒXƒeƒ€ƒLƒbƒ`ƒ“AHŠíôòŠ£‘‡‹@Aò…ŠíAƒGƒAƒRƒ“A°’g–[A’Ç‚¢•°‚«•tƒtƒ‹ƒI[ƒgƒoƒXA—ŽºŠ·‹CŠ£‘‡‹@AƒEƒHƒVƒ…ƒŒƒbƒgABS¥CSA’“ŽÔêAƒoƒCƒN’uêA’“—Öê |
| Œ»‹µ^ˆø“n |
Œ»‹ó^‘Š’k |