|
|
|
 |
|
| 物件名称 長居 収益マンション |
| 所在地 |
大阪市住吉区長居東4丁目 |
| 交通 |
御堂筋線「長居」駅徒歩2分 |
 |
| 外観 |
|
 |
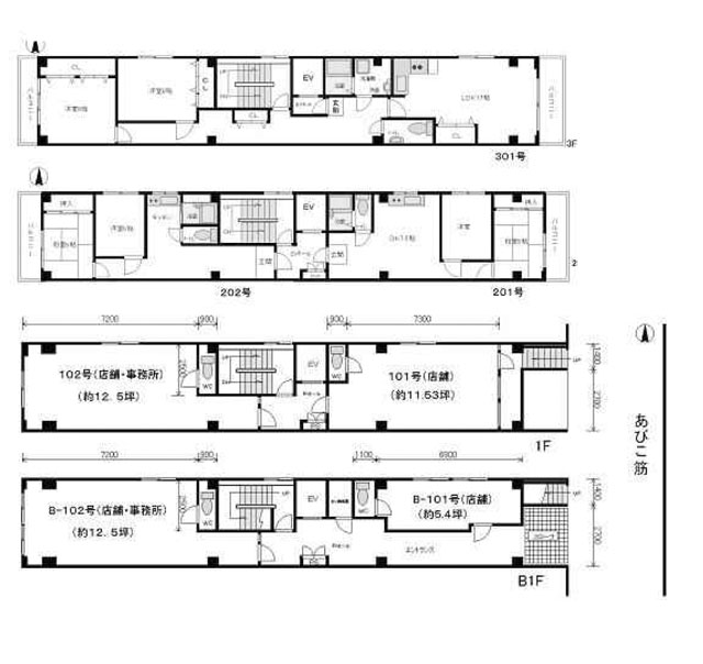
| 平面図 |
|
| 土地 |
面積 |
132.26m2(40.00坪) |
契約条件 |
販売価格 |
【終了】 |
| 権利関係 |
所有権 |
年間賃料 |
6,840,000円(満室想定) |
| 接道 |
東側(公道)27m |
利回り |
8.14%(満室想定) |
| 建物 |
面積 |
382.22m2(99.28坪) |
現況 |
賃貸中 |
| 構造 |
SRC造 地上4階建 |
|
| 総戸数 |
|
| 築年数 |
1994.4 |
| 公法制限 |
都市計画 |
市街化区域 |
| 用途地域 |
商業地域(近隣商業地域) |
| 建ぺい率/容積率 |
80%(80%)/400%(300%) |
| 防火指定 |
|
|
事業用ローンのことなら信頼と実績のあるネクストグループにお任せ下さい |
| 設備・条件 |
都市ガス/関西電力/公営水道/公共下水道/エレベーター |
| 備考 |
★満室想定利回り:8.14% ★現況利回り:5.52% ★検査済証なし ★平成6年築 ★あびこ筋面す |
| 引渡 |
相談 取引態様/媒介 更新日/2017年6月13日 |
|
|
| お問合せ |
 |
ネクストグループ/ネクストホーム株式会社 大阪市西区北堀江1-1-30 四ツ橋グリーンビル7F TEL 06-6167-7770 免許番号 大阪府知事(3)第54111号 |
|
|
 |
|
|